Midcentury Makeover
Story
I remember the first time I walked into this classic mid-century home. I thought: “it’s already so beautiful and well maintained…do they really need us?” Thankfully the answer was yes! Our tasks were:
- Completely update the originally (yes, original) kitchen and stay in keeping with the spirit of the space.
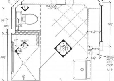
- Update the primary bath to make it safe and beautiful, as the homeowners planned to make it their forever home.
- Update a hall bath so guests had a beautiful space where the toilet flushed consistently! (It’s the simple things, right!)
Over the course of the months of planning and construction, these beautiful spaces came to life, reflecting the original design ethos of the home and the needs and impeccable style of the homeowners.
Wellness and Sustainability elements:
- Low/No VOC paints
- Locally sourced cabinets with low VOC finish
- Durable, timeless materials such as hardwood floors
- A curbless entry shower with handshower and built-in bench for ease of showering
- Intentionally designing the half shower wall to double as a “grab bar” for the toilet
- Refurbishing original bathroom pedestal sinks
- Refurbishing some original cabinetry
- Recycled or donated as many deconstructed materials as possible
Some of my favorite features:
- We built a 2” deep covered calendar hub, complete with corkboard and magnets, so that the homeowner’s sweet analog system of organization could be seen when needed, and unseen when not!
- Each kitchen backsplash tile was meticulously cut to insert a glass accent (thankfully our wonderful tile setter had the skill and the patience to pull this off!)
- After much engineering and head-scratching due to the existing floor structure, we were able to remove the original tub in the primary bath and lower the floor to build a curbless entry shower. I got a little sweaty on this one!
- I loved that we left the beautiful original bathroom cabinetry in place, spruced it up, gave it a paint job, installed beautiful Asian Contemporary inspired hardware, and completely transformed its style!
- Most of all, friendship. At the end of the day, building resilient relationships with those I get to serve is the most rewarding part of what I do.


